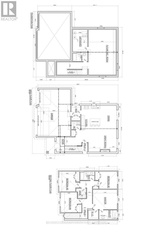
Welcome to the charming 4-bedroom, 2.5 bathrooms Spec Single Family home located in the heart of Lucan, Ontario for an example of our To Be Built Homes. Perfect for growing families, this spacious and thoughtfully designed home combines modern and comfort with timeless style. Built with high quality finishes and offers plenteous living space making it perfect to spend everlasting time with family and friends. 4 generous sized bedrooms all located on the upper floor for privacy and convenience. Features an Ensuite + Main Bathroom upstairs, convenient upstairs Laundry room for no more hauling laundry up and downs stairs!. Open concept main floor featuring a bright Great Room with a cozy fireplace. Chef's kitchen with modern finishes and a beautiful island space, ideal for entertaining. This home offers seamless flow to the living and dining space. Main Floor Powder room for guests. 3-Car Garage with plenty space for vehicles, storage and a workshop if desired. Located in Lucan the fastest growing community in Ontario, just a short drive from London. You'll enjoy the prefect balance of peaceful small-town living with easy access to bigger city amenities. TWO Nearby Schools, parks, multi-purpose community centre, community pool, shopping, dental offices, pharmacies, pet stores, veterinary clinic, hardware store, nursery centre, restaurants, LCBO, Foodland, Canada Post, Service Canada office, ice cream parlour, hair salons, small boutique shops and more makes this a family-friendly and convenient location. Don't miss the chance to own a piece of this beautiful place where city and country living makes a perfect combination. (id:4069)
Address
124 WATTS DRIVE
List Price
$850,000
Property Type
Single Family
Type of Dwelling
Single Family
Transaction Type
Sale
Area
Ontario
Sub-Area
Lucan Biddulph (lucan)
Bedrooms
4
Bathrooms
3
Floor Area
2000 - 2500 Sq. Ft.
Lot Size
53.9 x 121.4 FT Sq. Ft.
MLS® Number
X12408202
Listing Brokerage
NU-VISTA PINNACLE REALTY BROKERAGE INC
Basement Area
N/A (Other, See Remarks)
Postal Code
N0M2J0
Amenities
Fireplace(s)
Open Houses
- December 13, 2:00 PM - 4:00 PM
- December 14, 2:00 PM - 4:00 PM
- December 20, 2:00 PM - 4:00 PM
- December 21, 2:00 PM - 4:00 PM
- December 27, 2:00 PM - 4:00 PM
- December 28, 2:00 PM - 4:00 PM
- January 03, 2:00 PM - 4:00 PM
- January 04, 2:00 PM - 4:00 PM
- January 10, 2:00 PM - 4:00 PM
- January 11, 2:00 PM - 4:00 PM




