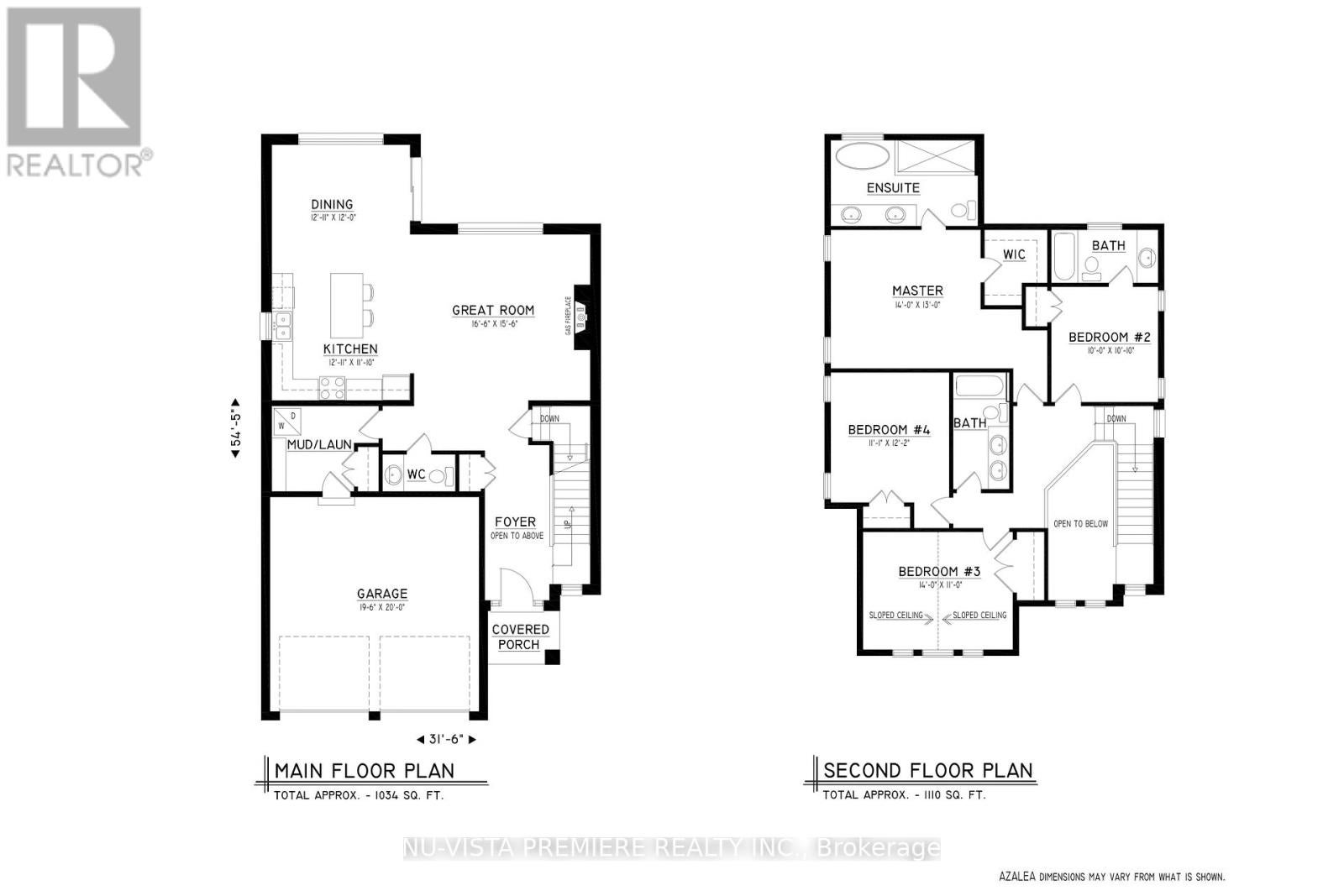
RAVINE WOODED WALKOUT LOT! New model home under construction. Faster closing date available. The AZALEA model with 2131 sq feet of Luxury finished area with full walk out basement backing onto protected treed area. Very rare and just a handful available! JACKSON MEADOWS, southeast London's newest area. This home comes standard walk out basement with full sized windows and door, ideal for future basement development. Quality built by Vander Wielen Design & Build Inc. and packed with luxury features! Choice of granite or quartz tops, hardwood on the main floor and upper hallway, hardwood stairs, 9ft ceilings on the main, deluxe "island" style kitchen, 3 full baths upstairs including a 5 pc luxury ensuite with tempered glass shower and soaker tub and an impressive two storey open foyer. The kitchen features a massive centre island and looks out to the wooded ravine! Open concept great room with fireplace! Jackson Meadows boasts landscaped parks, walking trails, tranquil ponds making it an ideal place to call home. Many lots available and plans ranging from 1655 sq ft to 3100 sq ft. NEW $28.2 million state of the art public school just announced for Jackson Meadows with 655 seats and will include a 5 room childcare centre for 2026 year! SPECIAL BONUS: 5 pc appliance package valued at $7500. Included in all homes purchased before November 30th. See listing agent for details. (id:4069)
Address
1189 HONEYWOOD DRIVE
List Price
$979,500
Property Type
Single Family
Type of Dwelling
Single Family
Transaction Type
Sale
Area
Ontario
Sub-Area
London South (south U)
Bedrooms
4
Bathrooms
3
Floor Area
2000 - 2500 Sq. Ft.
Lot Size
39.5 x 108.3 FT Sq. Ft.
MLS® Number
X12438401
Listing Brokerage
NU-VISTA PREMIERE REALTY INC.
Basement Area
Full
Postal Code
N6M1C1
Zoning
R1-4
Features
Sump Pump













